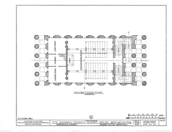
100 Courthouse Square
Item 28 of 76 (5258)
"Historic American Buildings Survey Alex Bush, Photographer, May 25, 1935 (COPIED) FRONT AND SIDE VIEW (REPRODUCTION) - FROM E.L. LOVE PHOTO"Source: Alex Bush
Date: c 1935Rights: Historic American Building Survey, Library of Congress
