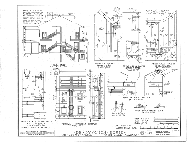
518 Adams Street SE
Item 9 of 31 (104)
Source: Carey CooperDate: c1972Rights: Harvie Jones Architectural Collection
Related Links:
Historic Huntsville Review, Volume 16, #1-2, April, 1989 - Photo of the house in "A Journalist's Perspective of the Invasion of Huntsville."
Twickenham Survey - Description of 518 Adams Street SE in the Twickenham Historic Register Application, Section 7, Page 10
The Following Pages Link to this Page:

